Widok na góry, miejsce post., kom. lok., 2pokoje
ul. Jana Kilińskiego, Świeradów-Zdrój
830 599,00 PLN





















Mieszkanie
Powierzchnia
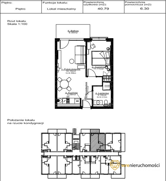
41,66 m²
Piętro
2
Pokoje
2
Łazienki
1
Sypialnie
1
Dostępne od
01.08.2025
Numer oferty
WRE11545385
Wyposażenie
lodówka
telewizor
zmywarka
Słowa kluczowe
Dla studenta
Dla niepełnosprawnych
Pod działalność gospodarczą
Do dalszego wynajmu
Blisko lasu
Cicha i spokojna okolica
Z dala od ruchliwej ulicy
Piękny widok
Wysoki standard wykończeń
Wysoki standard budynku
Zabudowa kuchni i sprzęt w cenie
Budynek
Ilość pięter
4
Rok budowy
2016
Opłaty
Cena
830 599,00 PLN
Cena za m²
19 937,57 PLN
Lokalizacja
Opis mieszkania
Zapraszamy do zapoznania się z ofertą sprzedaży 2-POKOJOWEGO MIESZKANIA o powierzchni 41,66 m² z balkonem o powierzchni 8 m² z PIĘKNYM WIDOKIEM na góry.
Do mieszkania przynależy również komórka lokatorska oraz miejsce postojowe w garażu podziemnym, które jest w cenie mieszkania.
Mieszkanie w Izerskim RESORT to dobra inwestycja, która może przynieść stały dochód. Ośrodek jest popularny wśród turystów, zarówno z Polski, jak i z zagranicy. Sezon narciarski trwa od grudnia do marca, a w sezonie letnim można korzystać z tras rowerowych i szlaków turystycznych.
Obecnie apartament jest wynajmowany na doby (najem krótkoterminowy) przez operatora.
Dzięki temu właściciel nie musi się angażować w wynajem, a apartament przynosi mu stały dochód.
Na tym terenie działają również firmy oferujące usługi zarządzania wynajmem krótkoterminowym.
APARTAMENT składa się z:
- Przedpokój
- Łazienka
- Sypialnia
- Pokój dzienny z aneksem kuchennym
- Balkon
DODATKOWE INFORMACJE:
- Piętro: 2
- Budynek z windą
- Miejsce postojowe w garażu podziemnym,
- Mieszkanie sprzedawane z pełnym wyposażeniem jak na zdjęciach
LOKALIZACJA:
- Świeradów Zdrój - Izerski Resort ul. Kilińskiego
OTOCZENIE:
- SKY WALK w Świeradowie - 18 minut spacerem
- Schronisko na Stogu Izerskim - 1 h marszem
- Wypożyczanie sprzętu narciarskiego, serwis i przechowalnia
- Koleje i wyciągi
- Restauracje i bary
- Basen
- Strefa SPA
- Strefa gier i animacje dla dzieci
- Szkoła narciarska
- Trasy biegowe
- Punkt widokowy
Krzysztof Mucha
t.: 577 100 628
WRE Nieruchomości
ul. Piłsudskiego 49-51, Wrocław
Uwaga! Prezentowane w serwisie oferty nie stanowią oferty handlowej w rozumieniu art. 66 Kodeksu Cywilnego i mogą być nieaktualne.
Nota prawna
Opis oferty zawarty na stronie internetowej sporządzany jest na podstawie oględzin nieruchomości oraz informacji uzyskanych od właściciela, może podlegać aktualizacji i nie stanowi oferty określonej w art. 66 i następnych K.C.
Do mieszkania przynależy również komórka lokatorska oraz miejsce postojowe w garażu podziemnym, które jest w cenie mieszkania.
Mieszkanie w Izerskim RESORT to dobra inwestycja, która może przynieść stały dochód. Ośrodek jest popularny wśród turystów, zarówno z Polski, jak i z zagranicy. Sezon narciarski trwa od grudnia do marca, a w sezonie letnim można korzystać z tras rowerowych i szlaków turystycznych.
Obecnie apartament jest wynajmowany na doby (najem krótkoterminowy) przez operatora.
Dzięki temu właściciel nie musi się angażować w wynajem, a apartament przynosi mu stały dochód.
Na tym terenie działają również firmy oferujące usługi zarządzania wynajmem krótkoterminowym.
APARTAMENT składa się z:
- Przedpokój
- Łazienka
- Sypialnia
- Pokój dzienny z aneksem kuchennym
- Balkon
DODATKOWE INFORMACJE:
- Piętro: 2
- Budynek z windą
- Miejsce postojowe w garażu podziemnym,
- Mieszkanie sprzedawane z pełnym wyposażeniem jak na zdjęciach
LOKALIZACJA:
- Świeradów Zdrój - Izerski Resort ul. Kilińskiego
OTOCZENIE:
- SKY WALK w Świeradowie - 18 minut spacerem
- Schronisko na Stogu Izerskim - 1 h marszem
- Wypożyczanie sprzętu narciarskiego, serwis i przechowalnia
- Koleje i wyciągi
- Restauracje i bary
- Basen
- Strefa SPA
- Strefa gier i animacje dla dzieci
- Szkoła narciarska
- Trasy biegowe
- Punkt widokowy
Krzysztof Mucha
t.: 577 100 628
WRE Nieruchomości
ul. Piłsudskiego 49-51, Wrocław
Uwaga! Prezentowane w serwisie oferty nie stanowią oferty handlowej w rozumieniu art. 66 Kodeksu Cywilnego i mogą być nieaktualne.
Nota prawna
Opis oferty zawarty na stronie internetowej sporządzany jest na podstawie oględzin nieruchomości oraz informacji uzyskanych od właściciela, może podlegać aktualizacji i nie stanowi oferty określonej w art. 66 i następnych K.C.
Numer oferty: WRE11545385



















































































